Doppelhaushälfte mit Traumgarten in Lübeck – St. Gertrud

Ihr Ansprechpartner:
Björn Simon
b.simon@claussen-immobilien.com
Immo-Nr.: H-164-25
Die
Eckdaten
Die
Lage
Die Doppelhaushälfte liegt im beliebten Stadtteil St. Gertrud – einem der begehrtesten Wohngebiete Lübecks. Hier verbinden sich ruhiges, gepflegtes Wohnen und die unmittelbare Nähe zur historischen Altstadt. Schulen, Einkaufsmöglichkeiten, Kindergärten und der öffentliche Nahverkehr sind bequem zu Fuß erreichbar, während Parks, Uferwege an Trave und Wakenitz sowie der Stadtpark zu erholsamen Spaziergängen einladen.
Die
Küche
Die moderne Einbauküche wurde erst 2022 erneuert und präsentiert sich in einem sehr gepflegten, zeitgemäßen Zustand. Sie bietet alle wichtigen Geräte, durchdachte Stauraumlösungen und lädt sowohl zum alltäglichen Kochen als auch zu gemeinsamen Kochabenden ein. Dank ihrer klaren Linienführung und der hellen Gestaltung wirkt der Raum freundlich und funktional.
Das
Wohnzimmer
Das Wohnzimmer im Erdgeschoss ist hell, gemütlich und hat einen Kaminofen, der an kühlen Tagen für eine warme Atmosphäre sorgt. Die Raumaufteilung bietet Platz für eine Sitzecke und einen großzügigen Essbereich. Durch die angenehme Helligkeit und den Blick in den Garten entsteht ein Wohngefühl, das sofort Ruhe und Zuhause vermittelt.
Das
Schlafzimmer
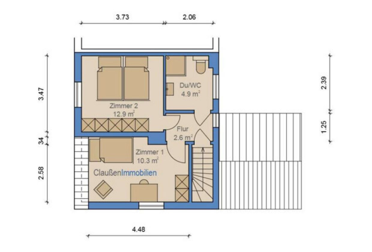
Im Obergeschoss stehen zwei Zimmer zur Verfügung, die flexibel als Schlafzimmer, Gästezimmer oder Arbeitsbereich genutzt werden können. Beide Räume bieten ausreichend Platz für individuelle Einrichtungsideen und profitieren von der ruhigen Lage des Hauses. Ein modernes Duschbad auf derselben Etage schafft zusätzlichen Komfort und macht die Zimmer zu angenehmen Rückzugsorten.
Das
Badezimmer
Die Bäder der Doppelhaushälfte präsentieren sich modern, gepflegt und funktional. Im Obergeschoss erwartet Sie ein helles Duschbad mit zeitgemäßen Armaturen und klarer Linienführung. Das großzügige Vollbad im Untergeschoss bietet mit Badewanne und zusätzlicher Dusche einen angenehmen Wohlfühlkomfort.
Der
Traumgarten
Der Garten ist ein echtes Highlight: liebevoll angelegt, weitläufig und perfekt nach Süden ausgerichtet. Zwischen Rasenflächen, Stauden und kleinen Gestaltungselementen entsteht ein idyllischer Rückzugsort, der vielfältige Nutzungsmöglichkeiten bietet. Ein Brunnen, eine gemütliche Grillstelle und viel Platz zum Spielen oder Entspannen machen das Grundstück zu etwas ganz Besonderem. Der Garten lädt ganzjährig zu entspannten Stunden im Freien ein – vom Frühstück in der Morgensonne bis zum sommerlichen Grillabend.
Die
Terrasse
Die Terrasse wirkt wie ein kleiner Wintergarten, sie verbindet den Innenraum harmonisch mit dem weitläufigen Garten und lädt zum Verweilen ein: ob als gemütlicher Leseplatz, Treffpunkt mit Freunden oder Ort für entspannte Stunden zu zweit. Durch die geschützte Lage lässt sich die Terrasse vom Frühjahr bis weit in den Herbst hinein optimal nutzen.
KI generierte Beispiele zur
Einrichtung
Die
Finanzierung
198.000,00 €
Courtage: 3,57% (inkl. ges. MwSt.)
Finanzierung gewünscht?
Ann-Christin Buck
04521 7904517
buck@rave-finanzierung.de
rave-finanzierung.de

Ihr Experte für diese Immobilie:
Björn Simon
Björn Simon
b.simon@claussen-immobilien.com
Immo-Nr.: H-164-25

Ihr Experte für diese Immobilie:
Björn Simon
b.simon@claussen-immobilien.com
Immo-Nr.: H-164-25
















