Neubau-Reihenendhaus in ruhiger und begehrter Wohnlage in Norderstedt

Ihre Ansprechpartnerin:
Bianca Claußen
0451 502 81 700
bianca@claussen-immobilien.com
Immo-Nr.: NB-168-25_48_WE3
Die
Eckdaten
Die
Lage
Dieses Neubau-Reihenendhaus liegt in der ruhigen und beliebten Tannenallee in Norderstedt, ganz nah an Hamburg. Die Nachbarschaft besteht aus gepflegten Einfamilien- und Reihenhäusern und viel Grün, sodass man hier ideal zur Ruhe kommen kann. Kleine Parks, Spazierwege und Spielplätze machen die Umgebung besonders familienfreundlich. Einkäufe, Schulen, Kitas und Ärzte sind bequem erreichbar, und auch Cafés und Restaurants laden zu entspannten Momenten ein. Durch die Nähe zu Hauptverkehrsachsen, Autobahn und öffentlichen Verkehrsmitteln erreicht man die Hamburger Innenstadt in kurzer Zeit. Hier verbinden sich naturnahes Wohnen, städtische Nähe und eine hohe Lebensqualität auf wunderbare Weise.
Der
Übersichtsplan
Der Übersichtsplan zeigt die Aufteilung des gesamten Grundstücks in die drei einzelnen Reihenhäuser, die jeweils eigene Eingänge besitzen. Jedes Haus ist klar nummeriert oder gekennzeichnet, sodass die Orientierung leicht fällt. Direkt angrenzend an die Häuser sind die zugehörigen Autostellplätze eingezeichnet, sodass für jedes Haus ausreichend Parkmöglichkeiten vorgesehen sind. So bekommen Sie schon hier ein Gefühl dafür, wie jedes Haus seinen Platz findet und die Freiräume zum Wohlfühlen einladen.
Das
Wohnzimmer
Das Wohnzimmer fühlt sich offen und einladend an und wird durch die großen Fenster schön mit Tageslicht versorgt. Der Raum ist angenehm geschnitten und bietet viel Platz für gemeinsame Abende, entspannte Stunden auf dem Sofa oder einen großzügigen Essbereich. Von hier aus geht es nach draußen auf die Terrasse.
Die
Küche
Die moderne Einbauküche von Schüller liegt praktisch im Wohnbereich und macht den Alltag angenehm unkompliziert. Kurze Wege, gute Lichtverhältnisse und ausreichend Platz sorgen dafür, dass Kochen hier richtig Spaß macht. Ob schnelles Frühstück oder gemeinsames Kochen mit Familie und Freunden, der Raum ist offen, freundlich und gut nutzbar.
Die
Schlafzimmer
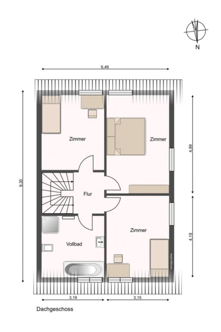
Die Schlafzimmer im Obergeschoss sind hell, ruhig gelegen und vielseitig nutzbar. Große Fenster lassen viel Tageslicht herein und schaffen eine angenehme Atmosphäre zu jeder Tageszeit. Die Räume bieten genug Platz für Bett, Schrank und persönliche Akzente und lassen sich flexibel als Schlaf-, Kinder- oder Arbeitszimmer gestalten.
Das
Badezimmer
Das Tageslichtvollbad wirkt freundlich und modern und bietet mit Dusche und Badewanne Komfort für jeden Tag. Durch das Fenster ist der Raum angenehm hell und gut belüftet. Die klare Aufteilung sorgt für ein entspanntes Raumgefühl und macht das Bad zu einem Ort, an dem man gerne in den Tag startet oder abends zur Ruhe kommt.
Die
Finanzierung
Kaufpreis: 560.000 €
Courtage: 2,98% (inkl. ges. MwSt.)
Finanzierung gewünscht?
Ann-Christin Buck
04521 7904517
buck@rave-finanzierung.de
rave-finanzierung.de

Ihre Expertin für diese Immobilie:
Bianca Claußen
Hinweis: Pflichtfelder (*) sind erforderlich zur Bearbeitung Ihrer Anfrage.
Die Angabe Ihrer Adresse ist freiwillig und dient ausschließlich der Vorbereitung eines möglichen Vertrags.
Bianca Claußen
0451 502 81 700
bianca@claussen-immobilien.com
Immo-Nr.: NB-168-25_48_WE3

Ihre Expertin für diese Immobilie:
Bianca Claußen
0451 502 81 700
bianca@claussen-immobilien.com
Immo-Nr.: NB-168-25_48_WE3

Hinweis: Pflichtfelder (*) sind erforderlich zur Bearbeitung Ihrer Anfrage.
Die Angabe Ihrer Adresse ist freiwillig und dient ausschließlich der Vorbereitung eines möglichen Vertrags.













